Diepeweg 22
8075 BX Elspeet
Foto's
Omschrijving
ONDERNEMEN EN WONEN OP TOPLOCATIE AAN DE DIEPEWEG
Ondernemen en wonen op topniveau komen samen aan de Diepeweg in Elspeet. Op deze aantrekkelijke locatie in het hart van de Veluwe wordt een kleinschalig en exclusief nieuwbouwproject gerealiseerd met vier representatieve bedrijfs-woningen van het type 2-1 kap. Een unieke kans voor de zelfstandig ondernemer die waarde hecht aan uitstraling, ruimte, bereikbaarheid en comfort.
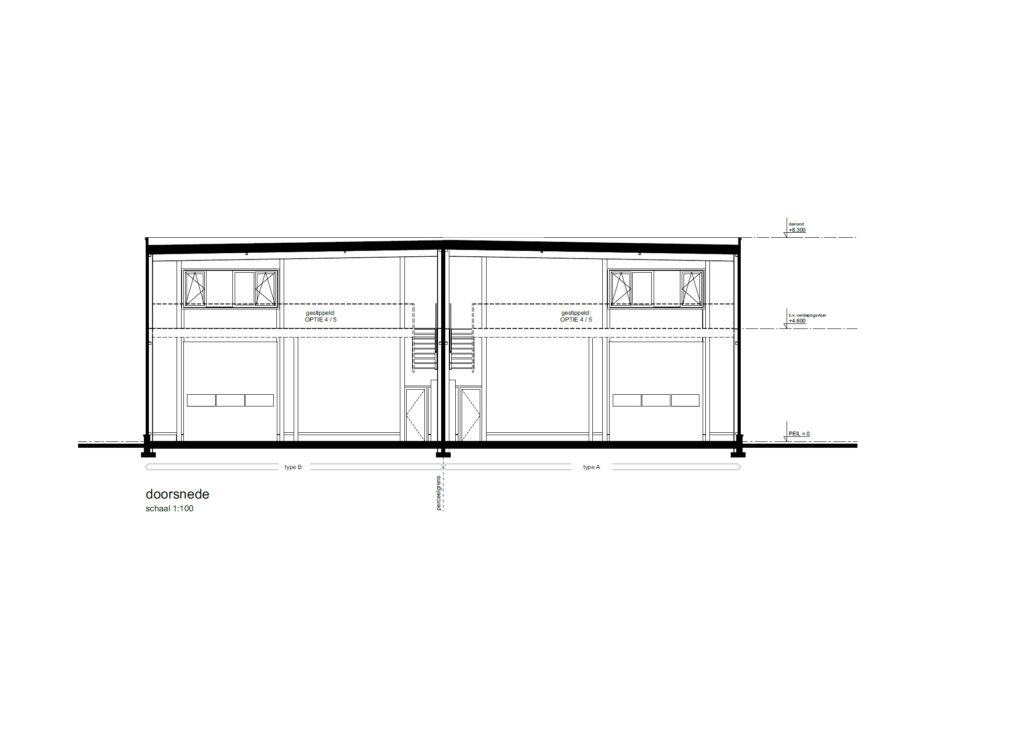
Elke bedrijfswoning beschikt over een royale eigen bedrijfsruimte van maar liefst 132 m², afzonderlijk bereikbaar vanaf de achterzijde via de Dorsvlegelweg. Daarmee is dit project bij uitstek geschikt voor ondernemers die wonen en werken efficiënt willen combineren, met behoud van privacy, functionaliteit en een professionele uitstraling. Daarnaast beschikt iedere unit over drie parkeerplaatsen op eigen terrein.
De woningen worden uitgevoerd met een luxe en hoogwaardige uitstraling waarbij gebruik wordt gemaakt van kwalitatief uitstekende en duurzame materialen. Het ontwerp biedt bovendien flexibiliteit: met verschillende opties is het mogelijk om zowel de woonruimte als de bedrijfsruimte verder te vergroten, zodat het geheel optimaal aansluit op uw persoonlijke woonwensen en de behoeften van uw onderneming.
De royale kavels hebben oppervlaktes van ca. 791 m², 836 m², 865 m² en 934 m² en bieden een bijzonder gevoel van ruimte en vrijheid. Aan de voorzijde geniet je van een fantastisch vrij uitzicht over de omliggende landerijen. Een inspirerende omgeving om te wonen, te werken en klanten of relaties te ontvangen. Centrumvoorzieningen zijn eveneens op korte afstand gelegen van de aangeboden woningen.
De uitstekende bereikbaarheid en de geplande start van de bouw in het eerste kwartaal van 2027, biedt dit project een uitzonderlijke kans voor ondernemers die klaar zijn voor een volgende stap in wonen én werken.
Diepeweg 22 | € 910.000,- vrij op naam | 865 m² | Beschikbaar
Diepeweg 24 | € 875.000,- vrij op naam | 836 m² | Beschikbaar
Diepeweg 26 | € 850.000,- vrij op naam | 791 m² | Beschikbaar
Diepeweg 28 | € 930.000,- vrij op naam | 934 m² | Beschikbaar
Start bouw Q1 2027
Specificaties woning:
– Vloeroppervlakte ca. 135 m²
– Optie erker + ca. 5 m²
– Optie uitbouw + ca. 35 m²
Specificaties bedrijfsruimte
– Vloeroppervlakte ca. 132 m²
– Optie uitbreiding begane grondvloer + 45 m²
– Optie uitbreiding verdiepingsvloer + 45 m² of 90 m²
Kenmerken
Overdracht
- Koopprijs
- € 850.000,- v.o.n.
- Status
- Beschikbaar
- Aanvaarding
- in overleg
Bouw
- Soort
- eengezinswoning
- Type
- 2-onder-1-kapwoning
- Bouwvorm
- nieuwbouw
- Bouwjaar
- 2027
- Bouwjaar periode
- 2001-
- Energielabel
- Nog niet bekend
Oppervlakte en inhoud
- Gebruiksoppervlakte woonfunctie
- 135 m2
- Perceel oppervlakte
- 4.450 m2
- Inhoud
- 550 m3
Kadastrale gegevens
- Oppervlakte
- 4.450 m2
Benieuwd naar
deze woning?
Bel ons
Stuur mail
Telefonisch bereikbaar tot 17:30
App je vraag
Per chat bereikbaar tot 21:00
Chat met ons
Per chat bereikbaar tot 21:00